龍池会館は、大雲院が運営する貸し会場です。円山公園のすぐ近くにあり、会館専用の玄関が道路(ねねの道)に面しているなど、祇園界隈の観光客の集客も見込める立地です。1階が洋式会場、2階が和式会場で、駐車場もご利用いただけます。

龍池会館

龍池会館

龍池会館玄関

龍池会館玄関

貸会場

1階:貸ホール(洋式会場):259.4m²・控室:40.4m²・エントランス52.7m²
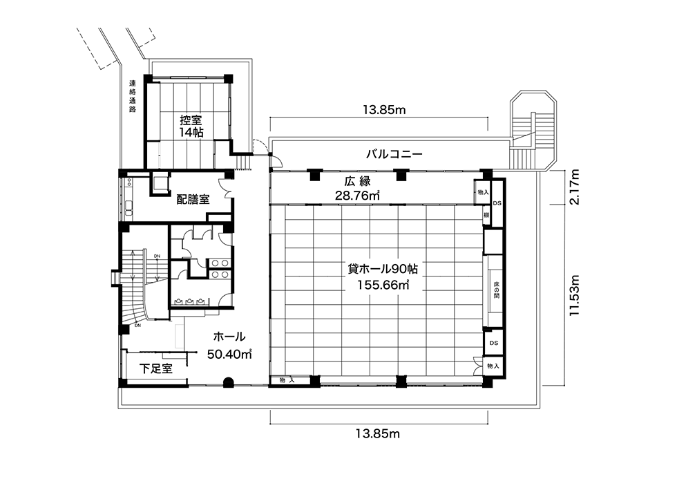
2階:貸ホール(和式会場):90帖/155.6m²・広縁:28.7m²・控室:14帖/24.2m²・ホール:50.4m²
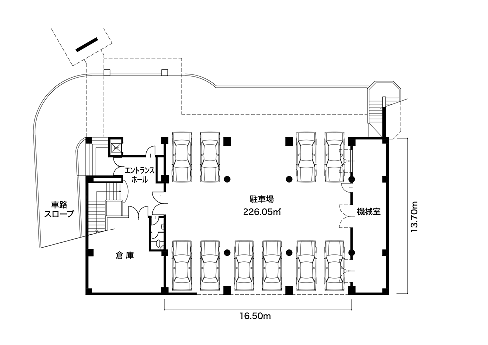
地階:駐車場
※各階に厨房・配膳室・洗面所を完備


1階貸ホール

1階貸ホール

1階貴賓室の螺鈿蒔絵「清雅」

1階控室

2階貸ホール

2階貸ホール

2階控室

2階控室

2階広縁から祇園閣を望む

2階広縁から祇園閣を望む

1階平面図

1階平面図

2階平面図

2階平面図

地下(駐車場)平面図

半地下(駐車場)平面図

使用実績

  1. 寺宝展
  2. 講演会
  3. 演芸会
  4. 着物新作発表・展示会・販売
  5. 新製品発表・展示会・販売

営業時間

9:00〜17:00

アクセス

京都市東山区祇園町南側594-1番地

お問い合わせ

詳細はお問い合わせください。


龍池会館貸会議室についての問い合わせ先

TEL 075-561-7374
FAX 075-533-7375
E-mail:ryuchi-kaikan@daiunin.or.jp

メールでのお問い合わせは、下記フォームよりお願いいたします。


会社名※必須
お名前※必須
フリガナ※必須
電話番号※必須
メールアドレス※必須
お問い合わせ内容※必須